TRADI-CONSTRUCT vous propose en exclusivité son nouveau projet à OTTIGNIES-LOUVAIN-la-NEUVE, (Limelette ).
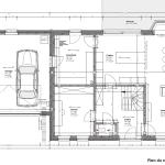
Bureau au rez de chaussée pouvant accueillir une profession libérale. Villa brabançonne neuve en cours de réalisation sur un magnifique et grand terrains de 32,69 ares. Constructions traditionnelles de qualité. Habitation aux EXCELLENTES PERFORMANCES ENERGETIQUES grâce notamment à une enveloppe globale bien isolée, pompe à chaleur et 12 PANNEAUX PHOTOVOLTAIQUES offrant dès lors le LABEL PEB A .Châssis triple vitrage. Possibilité de choix de certaines finitions intérieures (sanitaire, carrelage, portes...)

PEB A

Informations générales
Surface habitable : 386 m2
Surface du terrain : 3269 m2
Surface du séjour : 36 m2
Nombre d'étages : 2
Nombre de garages : 2
Informations financières
€ Prix : 899000 €
Autres informations
Type de chauffage : Pompe à Chaleur
Raccordement gaz : non
Raccordement eau : oui
Cuisine équipée : non
Type de vitrage : Triple
Loading…
Loading the web debug toolbar…
Attempt #